Podgorica, Momišići, jednosoban stan 51 m²


Location pin

Momišići, Podgorica

Ref. ID: 1347

Stan

Prodaja
Area 51
Bedroom 1
Bath 1

€ 112 200

Facebook WhatsApp Viber

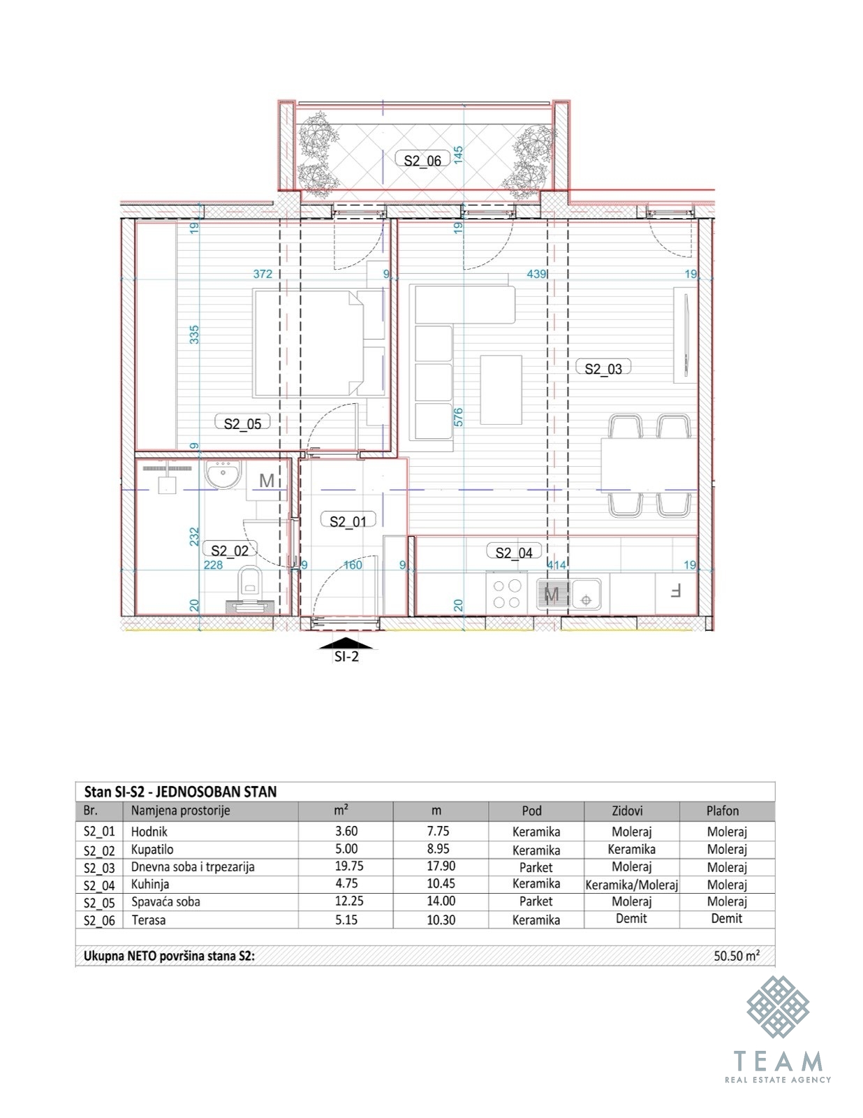
Na prodaju je jednosoban stan površine 51 m², u izgradnji u naselju Momišići, u Podgorici.

Planirani rok za završetak i useljenje je decembar 2026. godine.

Stan je projektovan tako da kombinuje funkcionalnost, savremeni dizajn i visok kvalitet materijala. Obuhvata dnevni boravak sa kuhinjom i trpezarijom, spavaću sobu, kupatilo, hodnik i terasu.

Lokacija nudi idealan balans između blizine centra grada i mirnog, porodičnog okruženja, sa brzom dostupnošću svim važnim sadržajima — školama, fakultetima, marketima i rekreativnim zonama.

Ova nekretnina predstavlja odličnu investiciju, kako za život, tako i za izdavanje u budućnosti.

Detalji nekretnine
Kvadratura: 51㎡ Broj spavaćih soba: 1 Broj balkona: 1 Broj kupatila: 1 Nenamješten Sprat 1

Slične nekretnine